architektonische Entwurfs- und Planungsleistungen für Ihre Bauprojekte
Christian Dimitrov, M. Sc. Architektur – unterstützt Bauherren, Architekturbüros und Bauträger mit Grundrissen, Bauplänen und 3D-Visualisierungen.
Für wen arbeiten wir?
Privatkunden
Künstler und Start-ups
Handwerks- und Produktunternehmen
Immobilienentwickler und Bauträger
Architekturbüros
die individuelle Wohnprojekte realisieren möchten
die ihre Ideen visuell kommunizieren oder Installationen virtuell erproben wollen.
(Tischler, Bootsbauer, Metallbauer, Designer), die ihre Produkte digital präsentieren möchten.
die für Marketing und Genehmigung überzeugende Darstellungen brauchen.
die hochwertige Visualisierungen oder LPH 1–4-Planungsunterstützung benötigen.
Unsere Leistungen im Überblick
Als erfahrener Bauzeichner mit Fokus auf die Leistungsphasen 1–4 nach HOAI bieten wir Ihnen eine zuverlässige und strukturierte Planung. Ob Grundlagenermittlung, Vorplanung, Entwurfsplanung oder Genehmigungsplanung – bei uns erhalten Sie alle Planungsleistungen aus einer Hand.
Bestandsaufnahme & Planungshilfen
-
Aufmaß vor Ort
-
Beschaffen & erstellen von Bestandsplänen / Grundrissen
-
Überarbeitung und Digitalisierung vorhandener Pläne
Planungsleistungen & Integration von Fachplanungen
-
Entwurfszeichnungen und Grundrissvarianten
-
Beratung und hinzuziehen von Fachplanern (Bau-Ing., Statiker, Brandschützer, Energieberater etc.)
-
Unterstützung bei der Zusammenstellung von Bauantragsunterlagen
Visualisierung &
Darstellung
-
3D-Visualisierungen (Innen & Außen)
-
Perspektiven, Schnitte, Detaildarstellungen
-
Visualisierungen für Exposés, Verkauf und Präsentationen
Projekte
Eine Auswahl an Projekten, bei denen wir mit Planung, Zeichnung und Visualisierung unterstützt haben.
Bauträgerprojekt - seLe planen + bauen
Für meinen Kunden, die „seLe planen + bauen“ aus Schwerin, durften wir ein geplantes
Mehrfamilienhaus mit 12 WE ́s in Ludwigslust visuell zum Leben erwecken.
Die Aufgabe: Ziel war die Erstellung einer hochwertigen Außenvisualisierung für das Bauschild. Die
Darstellung sollte potenziellen Interessenten und Anwohnern einen realistischen und attraktiven Eindruck
der geplanten Architektur vermitteln. Das Bauvorhaben wird im Jahr 2026 realisiert.
Master-Thesis - C.Dimitrov
Im Rahmen der Master Thesis habe ich eine durch Bögen konstruierte zweischiffige Industriehalle mit
einem Gitterschalendach für komplexe Holzverarbeitung entwickelt, welche selbst diese
Holzverarbeitungsmöglichkeiten in ihrer Erscheinung repräsentieren soll.
Die Aufgabe: Ein möglichst ungestörter und anpassungsfähiger Produktionskreislauf, durch einen freien
Grundriss und großem Anteil an indirektem Licht über die erhöhte Nordfassade, niedrigere Südfassade
und ein teilweise transluzentes Dach.
Master Thesis Christian Dimitrov
Bad & Ankleide - ReDesign
Für ein anspruchsvolles privates Wohnprojekt durfte ich die komplette Neugestaltung eines luxuriösen
Badezimmers inklusive einer angrenzenden, maßgefertigten Ankleide entwerfen und visualisieren.
Die Aufgabe: Erschaffung hochwertiger Innenräume, welche vermeintlich hinderliche Formen und
Schrägen in interessante, moderne Räume umwandelt. Die Visualisierungen dienten dem Bauherren als
essenzielle Entscheidungsgrundlage für Materialauswahl und die konstruktive Umsetzung.
Bad & Ankleide - ReDesign
MB Sprinter Ausbau
Für ein individuelles „Vanlife“-Projekt habe ich den Innenausbau eines Mercedes Benz Sprinters geplant.
Der Kunde ist Surfer und wollte seinen Kastenwagen auch als mobiles Heim nutzen.
Die Aufgabe: Entwicklung eines hochfunktionalen Raumkonzepts auf minimaler Fläche. Die Planung
diente als exakte Vorlage für die handwerkliche Umsetzung und die optimale Nutzung jedes Kubikzentimeters im Fahrzeug.
Mercedes Benz Sprinter Ausbau
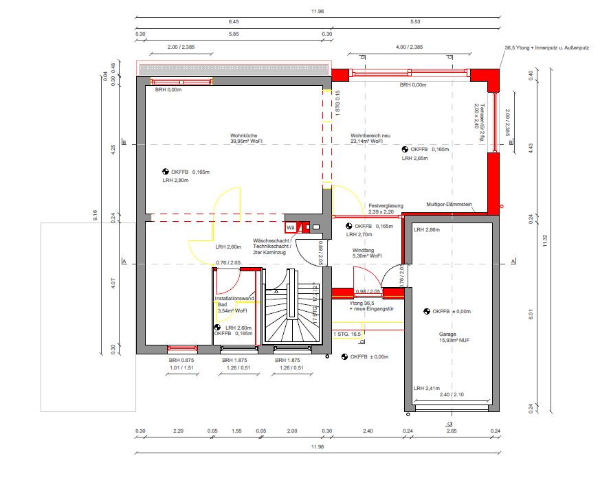
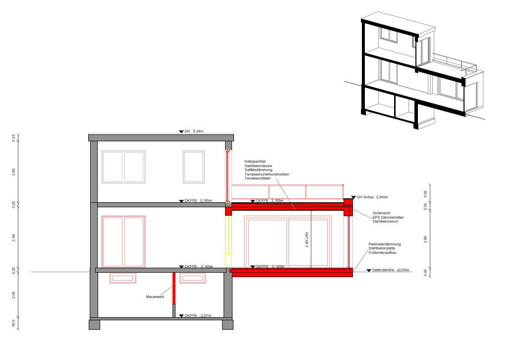
Anbau & Sanierungsprojekt
Für ein privates Wohnprojekt durfte ich die Transformation eines bestehenden Einfamilienhauses durch
eine umfassende Sanierung und einen modernen Anbau zur Wohnraumerweiterung in den
Leistungsphasen 1-4 erarbeiten.
Die Aufgabe: Das verborgene Potenzial der in die Jahre gekommenen Bestandsimmobilie zu erörtern
und einen genehmigungsfähigen Entwurf zu erarbeiten.
Anbau & Sanierungsprojekt
Wintergarten
Für ein privates Umbauprojekt an einem bestehenden Einfamilienhaus wünschte sich der Bauherr einen
Wintergarten zur Erweiterung des Wohnraums für sich und seiner Partnerin.
Die Aufgabe: Ein Entwurf der sich nahtlos in die Architektur des Einfamilienhauses einfügt und einen
fließend harmonischen Übergang zwischen Innen- und Außenraum ermöglicht. Ausführungsplanung hat
die auf Wintergärten spezialisierte Krenzer GmbH übernommen.
Wintergarten Visualisierung
Modernes Wellness Gartenhaus
Ein modernes Wellness-Gartenhaus für einen Kollegen und Bauingenieur habe ich als Rückzugsort für
Familie und Freunde konzipiert. Das Fundament stand bereits und den Rest sollte ich übernehmen.
Die Aufgabe: Ein offner, warm gestalteten Raum, mit SPA-Attributen soll zu Entspannung und
Geselligkeit einladen.
Visualisierung eines Gartenhauses in Polen
Umbauprojekt – Privatkunde
Für ein privates Umbauprojekt habe ich die umfassende Modernisierung einer Bestandswohnung planen, mit besonderem Fokus auf die Neugestaltung von Küche und Bad.
Ziel war es, die funktionalen Kernbereiche der Wohnung trotz begrenzter Quadratmeterzahl räumlich und ästhetisch aufzuwerten. Die Herausforderung lag darin, veraltete Strukturen aufzubrechen und durch intelligente Planung ein großzügiges, modernes Raumgefühl zu schaffen.
Entstanden ist ein lichtdurchflutetes Wohnkonzept, das durch klare Linien und effiziente Raumnutzung überzeugt. Elemente wie eine platzsparende Glasschiebetür und die helle Materialwahl lassen die Räume optisch größer wirken und vereinen nun zeitgemäßen Komfort mit höchster Funktionalität.
Anbau & Sanierungsprojekt
Bauträgerprojekt – MGP
Für meinen Kunden, die Firma MGP aus Schwerin, durfte ich ein geplantes Mehrfamilienhaus noch vor dem ersten Spatenstich visuell zum Leben erwecken.
Ziel war die Erstellung einer hochwertigen Außenvisualisierung für das Bauschild. Die Darstellung sollte potenziellen Interessenten und Anwohnern einen realistischen und attraktiven Eindruck der geplanten Architektur vermitteln.
Das Bauvorhaben wird im Jahr 2026 realisiert.
Visualisierung Mehrfamilienhaus in Schwerin für den Bauträger MGP
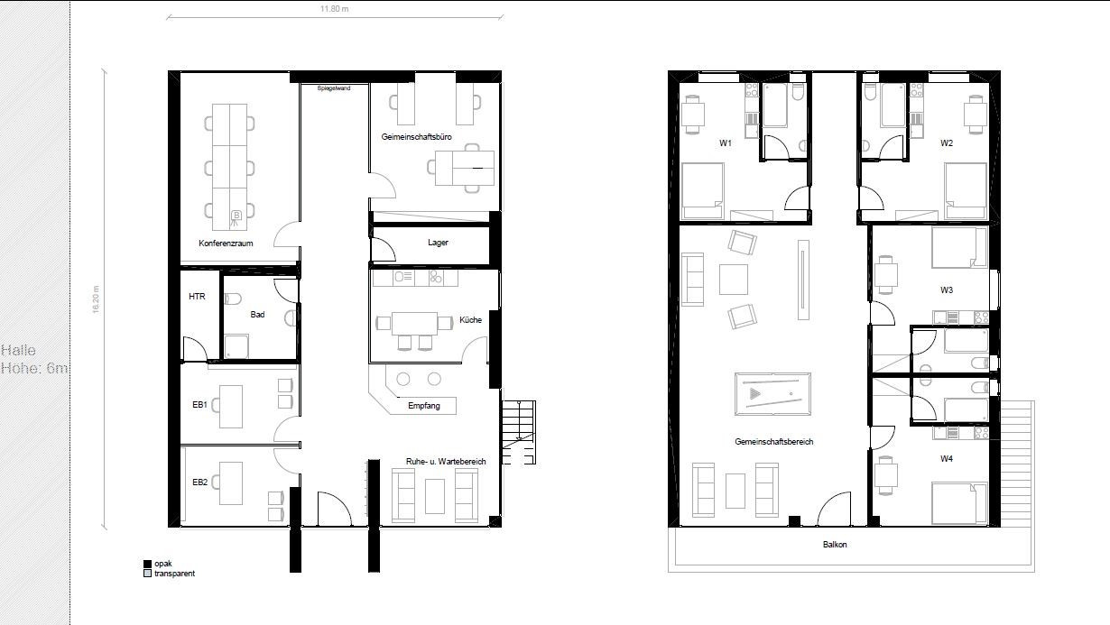
Hallenbüro Projekt
Für eine bestehende Industriehalle wurde ein kompaktes Bürogebäude mit integrierten Übernachtungsmöglichkeiten für Mitarbeiter gewünscht.
Die klare, funktionale Architektur schafft effiziente Arbeitsbereiche und einen komfortablen Gemeinschafts- und Wohnbereich auf zwei Ebenen.
Visualisierung eines Hallenbüros
Ablauf
Um eine hohe Qualität garantieren zu können, haben wir klare Abläufe, damit Sie gezielt zu ihrem Ergebnis kommen.
1

Anfrage & kurze Abstimmung
2

Angebotserstellung
3

Erste Entwürfe / Planungsvarianten
4

Gemeinsame Rücksprache & Anpassungen
5

Finale Pläne / Visualisierungen als Datei (PDF, DWG, JPG etc.)
Unser Team
Mit unserem Team sind wir in der Lage, ihr Projekt in jeder Phase von Planung bis zur Vermaktung zu begleiten.

Christian Dimitrov
Geschäftsführer & M.Arch.

Rick Sebastian
Marketing & Sales

Moritz Ott
Fotograf

Philosophie
Christian Dimitrov – Architektur trifft auf 3D-Design
In meiner Arbeit als Architekt und 3D-Designer verschmelzen präzise Planung und gestalterischer Anspruch. Ich entwickle Architektur, die funktional und dauerhaft ist – und zugleich visionär, emotional und zukunftsgerichtet. Dabei verbinde ich Luxus mit Suffizienz und das Bewährte mit dem Neuen.
Ich begleite Projekte ganzheitlich: von der Skizze über den Entwurf bis zur Genehmigungsreife. Hochwertige, fotorealistische Visualisierungen verstehe ich als integralen Bestandteil des Planungsprozesses. Ergänzend arbeite ich eng mit einem Netzwerk aus Ingenieuren und Spezialisten zusammen.
Häufig gestellte Fragen
Hier findest du Antworten auf die wichtigsten Fragen zur Zusammenarbeit mit Christian Dimitrov.
Welche Leistungen biete ich aktuell an?
Ich unterstütze Bauherren, Architekturbüros und Bauträger mit Aufmaß, der Erstellung von Bestandsplänen und Grundrissen, der Ausarbeitung von Plänen sowie mit 3D-Visualisierungen von Innen- und Außenräumen. Sein Fokus liegt auf präzisen Zeichnungen und verständlichen Darstellungen, die die weitere Planung und Kommunikation mit allen Beteiligten vereinfachen.
Biete ich vollständige Architektenleistungen an?
Ich habe einen Masterabschluss in Architektur (M. Sc.) und befinde mich aktuell im Prozess der Zulassung in der Architektenkammer. Bis zum Abschluss dieses Verfahrens biete ich alle Planungs-, Zeichen- und Visualisierungsleistungen in Zusammenarbeit mit Bauvorlageberechtigten Partnern an.
Wer unterschreibt Bauanträge und übernimmt die bauvorlageberechtigten Leistungen?
Bauanträge und alle bauvorlageberechtigten Tätigkeiten werden stets von einer dafür zugelassenen, eingetragenen Fachperson (z. B. einem Architekturbüro) unterschrieben und verantwortet. Ich übernehme dabei alle notwendigen zeichnerischen und inhaltlichen Vorbereitungen der Unterlagen und arbeitet bei Bedarf mit entsprechenden Partnerbüros zusammen.
Für wen arbeite ich?
Sowohl für private Bauherren als auch für Architekturbüros, Bauträger, Designer, Handwerksbetriebe und Investoren. Private Kunden profitieren von verständlichen Plänen und Visualisierungen für Umbau, Ausbau oder Modernisierung. Büros und Bauträger nutzen unsere Leistungen, um Planungsspitzen abzufedern, Projekte schneller durchzuarbeiten oder hochwertige Visualisierungen für Präsentation und Vertrieb zu erhalten. In welcher Region bin ich tätig?
In welcher Region bin ich tätig?
Aufmaß- und Vor-Ort-Termine biete ich vor allem in Berlin und Umgebung an. Planungs- und Visualisierungsleistungen können – je nach Projekt – auch deutschlandweit digital umgesetzt werden. Nutzen Sie einfach das Kontaktformular, um Ihr Projekt kurz zu schildern; Sie erhalten eine Rückmeldung, ob und wie eine Zusammenarbeit möglich ist.
Wie läuft die Zusammenarbeit typischerweise ab?
Am Anfang steht eine unverbindliche Anfrage mit einer kurzen Beschreibung Ihres Projekts sowie vorhandenen Unterlagen. Anschließend werden Umfang, Ziele und der gewünschte Leistungsrahmen abgestimmt und als verbindliches Angebot gebündelt. Nach Vertragsschluss erstelle ich erste Zeichnungen oder Visualisierungen, die mit Ihnen im zweiten Schritt abgestimmt und anschließend final ausgearbeitet werden. Zum Schluss erhalten Sie alle vereinbarten Pläne und Dateien in den benötigten Formaten.
Mit welchen Dateiformaten wird gearbeitet?
Je nach Projekt werden gängige CAD- und Grafikformate genutzt, zum Beispiel DWG, DXF und PDF für Pläne sowie JPG oder PNG für Visualisierungen. Auf Wunsch können Daten so aufbereitet werden, dass sie direkt an weitere Fachplaner, Architekturbüros oder Vertriebspartner übergeben werden können.
Kann ich bestehende Pläne überarbeiten oder digitalisieren?
Ja. Vorhandene Pläne, Papierunterlagen oder Skizzen können digitalisiert, überarbeitet und in klare, gut lesbare Bestands- oder Entwurfspläne überführt werden. Das ist insbesondere sinnvoll bei älteren Gebäuden, Umbauprojekten oder wenn bisher nur handschriftliche Skizzen existieren.
Wie werden die Leistungen abgerechnet?
Die Abrechnung erfolgt in der Regel projektbezogen zu einem vorher vereinbarten Festpreis oder auf Basis eines transparenten Angebots mit klar definiertem Leistungsumfang. So wissen Sie schon vor Projektstart, mit welchen Kosten Sie rechnen können. Für kleinere Leistungen (z. B. einzelne Visualisierungen) können auch Pauschalen vereinbart werden.
Wie schnell kann mein Projekt umgesetzt werden?
Die Dauer hängt vom Umfang Ihres Projekts, der Komplexität und der Auslastung ab. Kleinere Visualisierungen oder einzelne Grundrisse können oft innerhalb weniger Tage bis weniger Wochen realisiert werden, umfangreichere Projekte benötigen mehr Zeit. Nach Ihrer Anfrage erhalten Sie eine realistische Einschätzung zu Termin und Ablauf.
Unser Kalkulator
Berechnen Sie bereits vorab (grob) die Kosten ihres Projekts. Finale Absprachen und Vereinbarungen, werden im 1 zu 1 besprochen. Dieses Tool dient ausschließlich einer groben Kalkulation.
Welche Ansicht soll visualisiert werden?
Wie viele unterschiedliche Blickwinkel sollen gerendert werden?
Einfach = schnelle Studie · Detailliert = fotorealistisch
Gesamtfläche aller Etagen kombiniert
Bemaßt & möbliert = direkt einreichbar bei Behörden
DWG / DXF = bearbeitbares CAD-Format
Gesamtfläche des Objekts, das aufgemessen werden soll
Mehr Räume = mehr Messpunkte und Zeitaufwand
Altbauten erfordern mehr Zeit durch Unregelmäßigkeiten
Außerhalb Berlins: Anfahrtspauschale wird addiert
Ihr Richtwert:
Basierend auf Ihren Angaben – unverbindliche Kostenschätzung.
Basisleistung
€130
Aufschläge
—
Gesamt
ab ca. €130
Alle Preise zzgl. MwSt. · Richtwerte ohne Gewähr



























































